Anker 53 7891 MK KLAZIENAVEEN
€ 309.000 Kosten koper
Omschrijving
Starters en gezinnen opgelet! Levensloopbestendig wonen in een rustige woonomgeving.
Op een leuke locatie met een vrije ligging aan de voorzijde, wordt deze goed onderhouden woning met aanbouw en stenen garage te koop aangeboden. De woning, gebouwd in 1983 is grotendeels geïsoleerd en perfect onderhouden. Recentelijk is de begane grond vernieuwd met o.a. een prachtige inbouwkeuken, nieuwe PVC vloeren, nieuwe meterkast en gedeeltelijk nieuw stucwerk! In 2024 is de woning tevens (grotendeels) voorzien van kunststof kozijnen met HR++ beglazing. Het betreft een ideaal woonhuis voor zowel starters, jonge gezinnen en senioren. De kavelgrootte bedraagt 218m² eigen grond. Het schilderwerk intern en extern verkeert in een goede staat.
Indeling
Begane grond: entree in de hal met doorgang naar de berging/hobbyruimte, v.v. witgoedopstelling. Open keuken met moderne inbouwkeuken (2024) en diverse apparatuur zoals, koelkast, vaatwasser, inductiekookplaat, afzuigkap, combi-oven en Quooker. De woonkamer is tuingericht gesitueerd en biedt veel lichtinval door de aanwezige raampartijen. Er is tevens een voorraadkast aanwezig, airconditioning en een tuindeur naar het terras. Tussenhal met toiletruimte (netjes en functioneel). Vanuit de keuken is de aangrenzende hobby-/slaapkamer te bereiken met tevens de aansluitingen voor een doucheruimte. De aangebouwde stenen garage is buitenom te bereiken en circa 17m² groot (metselwerk in spouw uitgevoerd). De gehele begane grond is neutraal afgewerkt en grotendeels v.v. PVC vloeren.
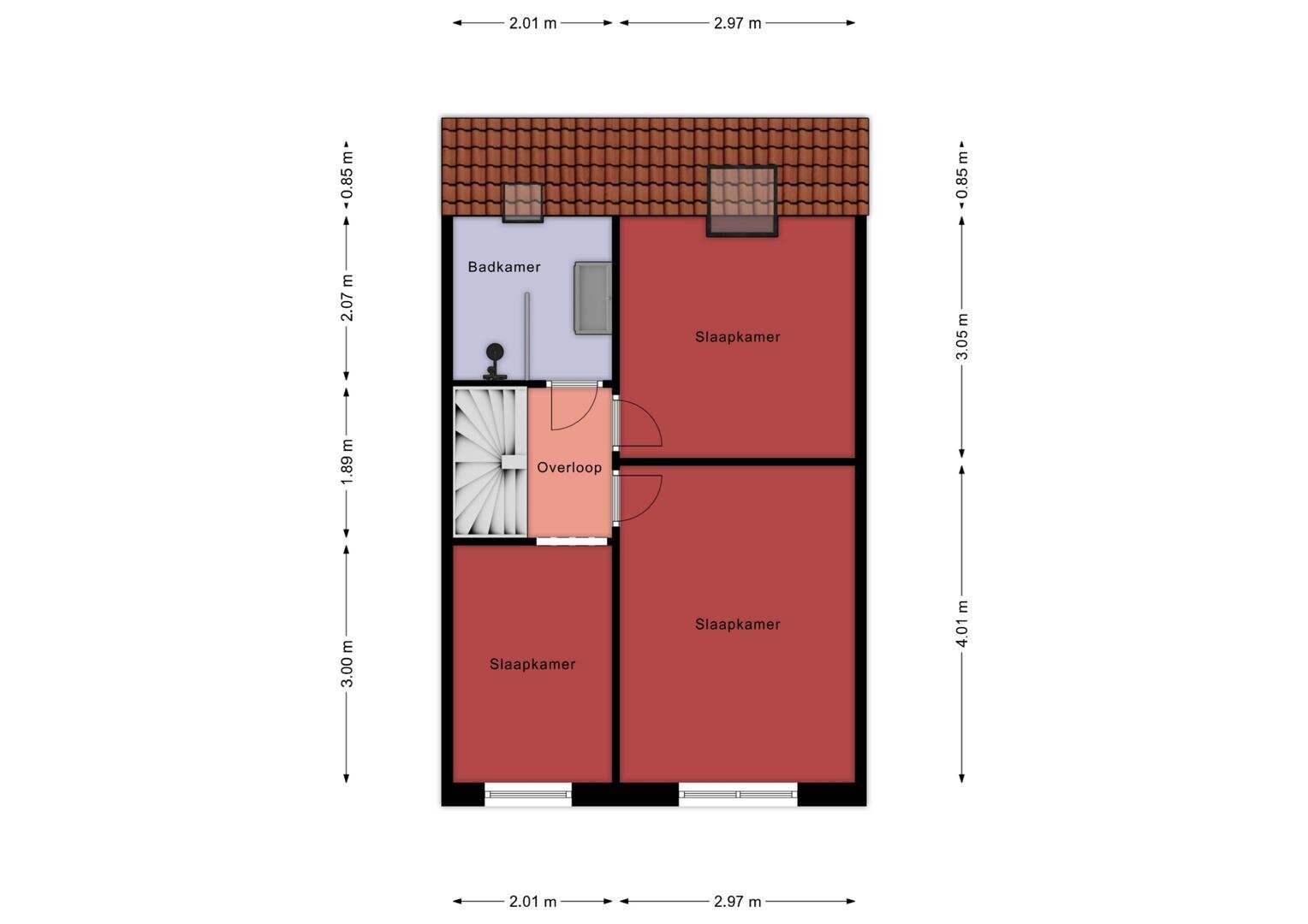
Eerste verdieping: overloop, 3 prima slaapkamers van resp. 6, 11 en 12 m² groot zijn. De badkamer is eveneens op de eerste verdieping gesitueerd, is modern uitgevoerd en v.v. inloopdouche, wastafelmeubel en designradiator.
Tweede verdieping: via vaste trap naar de extra na-geïsoleerde zolderverdieping. De zolderverdieping is eveneens v.v. een betonvloer, dakraam en is een fijne aanvulling op het geheel. Het is mogelijk om een extra kamer te realiseren indien nodig of gewenst.
Tuin: De tuinen aan zowel voor- als achterzijde zijn keurig aangelegd. Er is voldoende parkeergelegenheid op eigen terrein, een ruime, in spouw uitgevoerde garage (circa 17m²) met elektrische kanteldeur en een prettige woonbeleving!
In de tuin is een houten berging/schuurtje van circa 8m², ideaal voor het opslaan van de tuingereedschap e.d. Aan de voorzijde is een overkapping aanwezig, een ideaal stekje om vanaf het voorjaar heerlijk te genieten! U leest het al, voor elk wat wils.
Bijzonderheden: ideaal object geschikt voor een breed publiek van starters tot senioren; ruime hobby-/slaapkamer op de begane grond aanwezig (circa 15m²) met aansluitingen voor eventueel douchegelegenheid; de woning is gedeeltelijk voorzien van rolluiken; goed geïsoleerde woning; korte afstand van het zeer complete centrum Klazienaveen gelegen; groene woonomgeving nabij natuurreservaat "Het Bargerveen"; Emmen op ca. 15 autominuten afstand gelegen; goede uitvalswegen richting Groningen/ Zwolle/ Duitsland middels de A37.
Klazienaveen:
Het dorp Klazienaveen heeft vele voorzieningen; levendig centrum, diverse scholen (basis & voortgezet onderwijs), overdekt zwembad, bioscoop en uitgebreide sportmogelijkheden. Emmen met onder andere een treinstation, ziekenhuis, "Wildlands Adventure Zoo Emmen" en modern theater ligt op circa 15 autominuten.
Extra informatie
- Zonnepanelen 12 stuks, geïnstalleerd in 2022.
- Badkamer vernieuwd in 2022.
- Grotendeels voorzien van kunststof kozijnen (2024).
- Zolderverdieping is voorzien van extra dakisolatie.
- Achtergevel & zijgevel opnieuw ingevoegd en geïmpregneerd.
- In 2025 is een waterontharder geïnstalleerd (Amysoft).
- Verwarming middels radiatoren en 2 airco's (2024), CV-ketel (2016);
U kunt contact opnemen met ons kantoor voor het maken van een afspraak.
Op een leuke locatie met een vrije ligging aan de voorzijde, wordt deze goed onderhouden woning met aanbouw en stenen garage te koop aangeboden. De woning, gebouwd in 1983 is grotendeels geïsoleerd en perfect onderhouden. Recentelijk is de begane grond vernieuwd met o.a. een prachtige inbouwkeuken, nieuwe PVC vloeren, nieuwe meterkast en gedeeltelijk nieuw stucwerk! In 2024 is de woning tevens (grotendeels) voorzien van kunststof kozijnen met HR++ beglazing. Het betreft een ideaal woonhuis voor zowel starters, jonge gezinnen en senioren. De kavelgrootte bedraagt 218m² eigen grond. Het schilderwerk intern en extern verkeert in een goede staat.
Indeling
Begane grond: entree in de hal met doorgang naar de berging/hobbyruimte, v.v. witgoedopstelling. Open keuken met moderne inbouwkeuken (2024) en diverse apparatuur zoals, koelkast, vaatwasser, inductiekookplaat, afzuigkap, combi-oven en Quooker. De woonkamer is tuingericht gesitueerd en biedt veel lichtinval door de aanwezige raampartijen. Er is tevens een voorraadkast aanwezig, airconditioning en een tuindeur naar het terras. Tussenhal met toiletruimte (netjes en functioneel). Vanuit de keuken is de aangrenzende hobby-/slaapkamer te bereiken met tevens de aansluitingen voor een doucheruimte. De aangebouwde stenen garage is buitenom te bereiken en circa 17m² groot (metselwerk in spouw uitgevoerd). De gehele begane grond is neutraal afgewerkt en grotendeels v.v. PVC vloeren.
Eerste verdieping: overloop, 3 prima slaapkamers van resp. 6, 11 en 12 m² groot zijn. De badkamer is eveneens op de eerste verdieping gesitueerd, is modern uitgevoerd en v.v. inloopdouche, wastafelmeubel en designradiator.
Tweede verdieping: via vaste trap naar de extra na-geïsoleerde zolderverdieping. De zolderverdieping is eveneens v.v. een betonvloer, dakraam en is een fijne aanvulling op het geheel. Het is mogelijk om een extra kamer te realiseren indien nodig of gewenst.
Tuin: De tuinen aan zowel voor- als achterzijde zijn keurig aangelegd. Er is voldoende parkeergelegenheid op eigen terrein, een ruime, in spouw uitgevoerde garage (circa 17m²) met elektrische kanteldeur en een prettige woonbeleving!
In de tuin is een houten berging/schuurtje van circa 8m², ideaal voor het opslaan van de tuingereedschap e.d. Aan de voorzijde is een overkapping aanwezig, een ideaal stekje om vanaf het voorjaar heerlijk te genieten! U leest het al, voor elk wat wils.
Bijzonderheden: ideaal object geschikt voor een breed publiek van starters tot senioren; ruime hobby-/slaapkamer op de begane grond aanwezig (circa 15m²) met aansluitingen voor eventueel douchegelegenheid; de woning is gedeeltelijk voorzien van rolluiken; goed geïsoleerde woning; korte afstand van het zeer complete centrum Klazienaveen gelegen; groene woonomgeving nabij natuurreservaat "Het Bargerveen"; Emmen op ca. 15 autominuten afstand gelegen; goede uitvalswegen richting Groningen/ Zwolle/ Duitsland middels de A37.
Klazienaveen:
Het dorp Klazienaveen heeft vele voorzieningen; levendig centrum, diverse scholen (basis & voortgezet onderwijs), overdekt zwembad, bioscoop en uitgebreide sportmogelijkheden. Emmen met onder andere een treinstation, ziekenhuis, "Wildlands Adventure Zoo Emmen" en modern theater ligt op circa 15 autominuten.
Extra informatie
- Zonnepanelen 12 stuks, geïnstalleerd in 2022.
- Badkamer vernieuwd in 2022.
- Grotendeels voorzien van kunststof kozijnen (2024).
- Zolderverdieping is voorzien van extra dakisolatie.
- Achtergevel & zijgevel opnieuw ingevoegd en geïmpregneerd.
- In 2025 is een waterontharder geïnstalleerd (Amysoft).
- Verwarming middels radiatoren en 2 airco's (2024), CV-ketel (2016);
U kunt contact opnemen met ons kantoor voor het maken van een afspraak.
Kenmerken
Refresh to make it work.
Plan een bezichtiging
voor: Anker 53
Bel ons op 0591-648766 voor direct contact.
Of laat uw gegevens achter en wij nemen zo snel mogelijk contact met u op.






















































