De Hietbrink 17 7824 XM EMMEN
€ 469.000 Kosten koper
Omschrijving
instap-klaar verhuizen maar! Volledig gerenoveerde en gemoderniseerde bungalow.
Op een geliefde plek in de woonwijk Angelslo staat op een riante kavel deze prachtig gelegen mooie BUNGALOW met o.a. 2 veranda's, tuinberging en een eigen garagebox. Deze vrijstaande geschakelde bungalow ligt op een rustig plekje aan de rand van de straat omgeven door veel groen, mooi op de zon gelegen en met een volledig privé zonneterras. Dit zou een ideale plek zijn voor rust en ontspanning midden in de natuur. De bungalow is vanaf 2018 volledig vernieuwd, na-geïsoleerd en keurig onderhouden, heeft een ruime woonkeuken, een tuingerichte woonkamer en dit zijn natuurlijk perfecte plekken voor zowel koken als gezellig samenzijn. Er is een garagebox (uit een blok van 4) op loopafstand bereikbaar. Daarnaast biedt Angelslo goede voorzieningen die de leefbaarheid en het comfort in een wijk vergroten, zoals een winkelcentrum voor de dagelijkse behoefte, diversiteit in scholen en een breed scala aan sporten en fysieke activiteiten. Er is een goede openbaar vervoer verbinding met Emmen centrum aanwezig en in ca. 10 fietsminuten staat u in het centrum van Emmen.
Indeling:
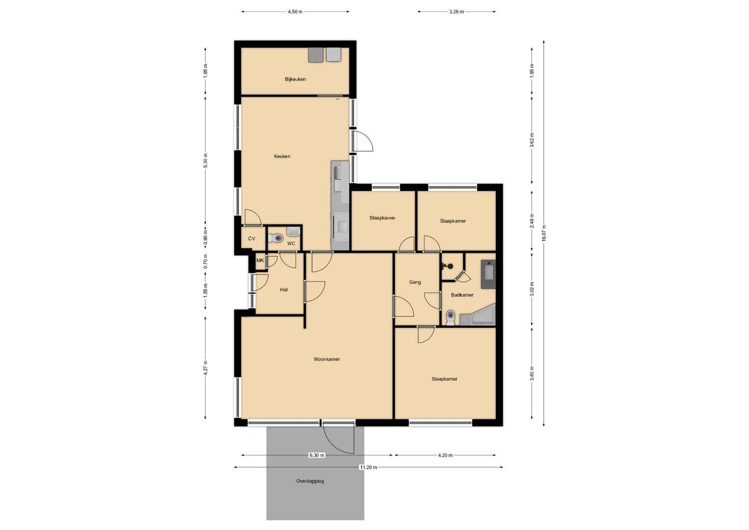
Begane grond: Entree/hal, meterkast, toiletruimte v.v. wandcloset en fonteintje, ruime tuingerichte woonkamer met veel lichtinval, aansluitend is de moderne woonkeuken uit 2019 te bereiken met prachtige inbouwkeuken voorzien van koelkast, vaatwasser, oven, inductie kookplaat en afzuigkap en cv kast, via schuifdeur naar de complete bijkeuken met wasmachine- en droger aansluiting, tussenhal, 3 prima slaapkamers, moderne en luxe badkamer uit 2019 voorzien van douchehoek, ligbad met whirlpool, wastafelmeubel en 2e toilet. Verwarming geschiedt middels vloerverwarming en het geheel is perfect onderhouden.
Tuin: rondom de bungalow ligt een verzorgd aangelegde tuin met diverse terrassen, overkapping (aluminium overkapping) en schuttingen. Achterin de tuin is tevens een sfeervolle overkapping gerealiseerd alsmede 2 schuurtjes ideaal geschikt voor het tuingereedschap. Op loopafstand van de woning is de garagebox (6 x 3 meter) te bereiken voorzien van een betonvloer. De tuinen bieden gezien de ligging enorm veel privacy en rust! Een heerlijk plekje op loopafstand van de wijkvoorzieningen.
Overige info:
- bouwjaar 1973, vanaf 2018 compleet gerenoveerd en gemoderniseerd;
- perceel 573 m2 eigen grond, met een keurig aangelegde tuin en diverse terrasjes;
- energielabel A; volledig geïsoleerd geheel: dak, muur, vloer en zonnepanelen;
- schilderwerk binnen en buiten vernieuwd in 2024;
- overal (behalve in de badkamer) ligt een keurige pvc vloer;
- de woning is grotendeels voorzien van rolluiken en horren;
- platdak huis en garage vernieuwd bitumen in 2023;
- garagebox inclusief en op loopafstand bereikbaar;
- nieuwe schuttingen rondom en veranda in 2020 gerealiseerd;
- grotendeels kunststof kozijnen met HR++ glas en inzethorren;
- cv-ketel ATAG uit 2021; (HR Combi in eigendom);
- 16 zonnepanelen + omvormer uit 2019 (in eigendom);
- winkels, scholen en sport op loopafstand, het stadscentrum is op 5 autominuten te bereiken.
Op een geliefde plek in de woonwijk Angelslo staat op een riante kavel deze prachtig gelegen mooie BUNGALOW met o.a. 2 veranda's, tuinberging en een eigen garagebox. Deze vrijstaande geschakelde bungalow ligt op een rustig plekje aan de rand van de straat omgeven door veel groen, mooi op de zon gelegen en met een volledig privé zonneterras. Dit zou een ideale plek zijn voor rust en ontspanning midden in de natuur. De bungalow is vanaf 2018 volledig vernieuwd, na-geïsoleerd en keurig onderhouden, heeft een ruime woonkeuken, een tuingerichte woonkamer en dit zijn natuurlijk perfecte plekken voor zowel koken als gezellig samenzijn. Er is een garagebox (uit een blok van 4) op loopafstand bereikbaar. Daarnaast biedt Angelslo goede voorzieningen die de leefbaarheid en het comfort in een wijk vergroten, zoals een winkelcentrum voor de dagelijkse behoefte, diversiteit in scholen en een breed scala aan sporten en fysieke activiteiten. Er is een goede openbaar vervoer verbinding met Emmen centrum aanwezig en in ca. 10 fietsminuten staat u in het centrum van Emmen.
Indeling:
Begane grond: Entree/hal, meterkast, toiletruimte v.v. wandcloset en fonteintje, ruime tuingerichte woonkamer met veel lichtinval, aansluitend is de moderne woonkeuken uit 2019 te bereiken met prachtige inbouwkeuken voorzien van koelkast, vaatwasser, oven, inductie kookplaat en afzuigkap en cv kast, via schuifdeur naar de complete bijkeuken met wasmachine- en droger aansluiting, tussenhal, 3 prima slaapkamers, moderne en luxe badkamer uit 2019 voorzien van douchehoek, ligbad met whirlpool, wastafelmeubel en 2e toilet. Verwarming geschiedt middels vloerverwarming en het geheel is perfect onderhouden.
Tuin: rondom de bungalow ligt een verzorgd aangelegde tuin met diverse terrassen, overkapping (aluminium overkapping) en schuttingen. Achterin de tuin is tevens een sfeervolle overkapping gerealiseerd alsmede 2 schuurtjes ideaal geschikt voor het tuingereedschap. Op loopafstand van de woning is de garagebox (6 x 3 meter) te bereiken voorzien van een betonvloer. De tuinen bieden gezien de ligging enorm veel privacy en rust! Een heerlijk plekje op loopafstand van de wijkvoorzieningen.
Overige info:
- bouwjaar 1973, vanaf 2018 compleet gerenoveerd en gemoderniseerd;
- perceel 573 m2 eigen grond, met een keurig aangelegde tuin en diverse terrasjes;
- energielabel A; volledig geïsoleerd geheel: dak, muur, vloer en zonnepanelen;
- schilderwerk binnen en buiten vernieuwd in 2024;
- overal (behalve in de badkamer) ligt een keurige pvc vloer;
- de woning is grotendeels voorzien van rolluiken en horren;
- platdak huis en garage vernieuwd bitumen in 2023;
- garagebox inclusief en op loopafstand bereikbaar;
- nieuwe schuttingen rondom en veranda in 2020 gerealiseerd;
- grotendeels kunststof kozijnen met HR++ glas en inzethorren;
- cv-ketel ATAG uit 2021; (HR Combi in eigendom);
- 16 zonnepanelen + omvormer uit 2019 (in eigendom);
- winkels, scholen en sport op loopafstand, het stadscentrum is op 5 autominuten te bereiken.
Kenmerken
Refresh to make it work.
Helaas..
Dit object is niet meer beschikbaar
Voor meer informatie kunt u contact met ons opnemen.
Bel
ons op 0591-648766 voor direct contact.




















































