De Metten 16 7891 PV KLAZIENAVEEN
€ 325.000 Kosten koper
Omschrijving
Op een prachtig plekje in een vriendelijk hofje, vindt u deze keurig onderhouden 2-onder-1-kapwoning, gelegen op een riante kavel van 420m² en vele extra's!
De woning ligt in een gewilde woonlocatie en biedt door een praktische aanbouw een zeer ruim en licht woonoppervlak. De overzichtelijke indeling is perfect voor een gezin. Op de begane grond vindt u een L-woonkamer, een halfopen keuken, bijkeuken en garage. Op de eerste verdieping zijn 3 slaapkamers en een complete badkamer gesitueerd. Via vaste trap is de zolderverdieping te bereiken met de mogelijkheid voor een (compacte) 4e slaapkamer.
Een groot praktisch voordeel is de uitstekende buitenruimte, met een ruime garage, een carport en aluminium veranda. Dit zorgt o.a. voor volop parkeer- en opslagmogelijkheden. De woning is volledig geïsoleerd en voorzien van hardhouten kozijnen met dubbel glas, wat een comfortabel en energiezuinig woonklimaat garandeert. Kortom, dit is een ideale gezinswoning in een perfecte setting: rustig gelegen, met alle voorzieningen van Klazienaveen op loop- en fietsafstand.
Indeling
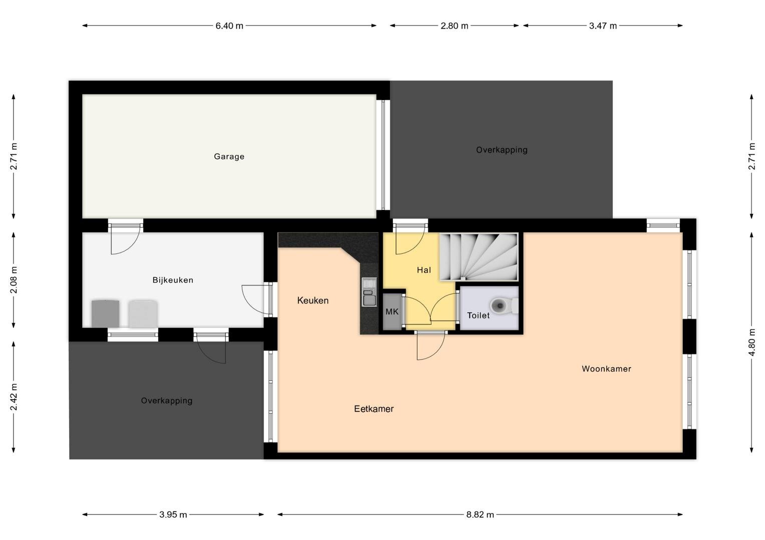
Begane grond: via de entree komt u in de hal met meterkast, waarna de trapopgang naar de eerste verdieping leidt; de woning biedt verder een L-vormige woonkamer met een houten plankenvloer en een halfopen keuken voorzien van diverse inbouwapparatuur (koelkast, 4-pits gaskookplaat, afzuigkap en oven), en een ruime bijkeuken met vaste kast, witgoedaansluitingen en een binnendoor verbinding naar de garage. De begane grond is keurig afgewerkt, perfect onderhouden en in-stap-klaar te noemen.
Eerste verdieping: via overloop heeft u toegang tot drie slaapkamers, waarvan één voorzien is van een dakraam en een andere van een dakkapel. De functionele badkamer is voorzien van wastafel, douchecabine, tweede toilet en radiator.
Tweede verdieping: via een vaste trap bereikt u de ruime zolderberging, die voorzien is van een vaste kastenwand en opstelplaats van de cv-ketel. Deze ruimte leent zich uitstekend voor realisatie van een extra slaapkamer/kantoor.
Tuin en bijgebouwen: De inrit aan de voorzijde leent zich uitstekend voor het parkeren van meerdere auto's. De achtertuin is netjes aangelegd en op het noordwesten gelegen. Gezien de ligging geniet u hier optimale privacy. De woning beschikt over een aangebouwde carport en een sfeervolle veranda voorzien van spotjes, ideaal om het hele jaar door van uw buitenruimte te genieten. Op het terrein bevindt zich tevens een vrijstaande stenen garage (33m²) voorzien van een betonnen vloer en zolder, terwijl de tuin grotendeels onderhoudsarm is aangelegd met sierbestrating.
Ligging: De Metten is een rustige, groene woonwijk gelegen in het zuidoostelijke deel van Klazienaveen. Het dorp Klazienaveen is een prachtig levendig dorp met diverse voorzieningen, zoals scholen, winkels, sportclubs, een prachtige bioscoop en overdekt zwembad. Er worden regelmatig evenementen georganiseerd. Klazienaveen is goed bereikbaar en op korte afstand van Emmen en andere plaatsen in de regio. Openbaar vervoer is beschikbaar via busverbindingen. Het dorp heeft een goede verbinding met de A37 en daarmee ook met Duitsland, wat het dorp een strategische locatie geeft voor zowel lokaal als internationaal verkeer.
Extra info:
- bouwjaar 1992; volledig geïsoleerd en keurig onderhouden;
- riante hoekkavel van ca. 420 m2 eigen grond;
- energielabel B, met einddatum 23-11-2030;
- verwarming via radiatoren en cv-ketel Remeha Avanta uit 2011;
- in 2008 is de dakbedekking aangebouwde garage vernieuwd;
- in 2025 is de dakbedekking + isolatie van de dakkapel vernieuwd;
- in 2025 is het buitenschilderwerk vernieuwd;
- de woning is voorzien van strakke wanden met sierpleisterwerk, nette vloeren en plafonds;
- het centrum, scholen, sport en natuurgebied Bargerveen op korte afstand gelegen;
- Emmen op 15 autominuten gelegen; goede uitvalswegen richting Duitsland/ Groningen/ Zwolle/ Emmen.
De woning ligt in een gewilde woonlocatie en biedt door een praktische aanbouw een zeer ruim en licht woonoppervlak. De overzichtelijke indeling is perfect voor een gezin. Op de begane grond vindt u een L-woonkamer, een halfopen keuken, bijkeuken en garage. Op de eerste verdieping zijn 3 slaapkamers en een complete badkamer gesitueerd. Via vaste trap is de zolderverdieping te bereiken met de mogelijkheid voor een (compacte) 4e slaapkamer.
Een groot praktisch voordeel is de uitstekende buitenruimte, met een ruime garage, een carport en aluminium veranda. Dit zorgt o.a. voor volop parkeer- en opslagmogelijkheden. De woning is volledig geïsoleerd en voorzien van hardhouten kozijnen met dubbel glas, wat een comfortabel en energiezuinig woonklimaat garandeert. Kortom, dit is een ideale gezinswoning in een perfecte setting: rustig gelegen, met alle voorzieningen van Klazienaveen op loop- en fietsafstand.
Indeling
Begane grond: via de entree komt u in de hal met meterkast, waarna de trapopgang naar de eerste verdieping leidt; de woning biedt verder een L-vormige woonkamer met een houten plankenvloer en een halfopen keuken voorzien van diverse inbouwapparatuur (koelkast, 4-pits gaskookplaat, afzuigkap en oven), en een ruime bijkeuken met vaste kast, witgoedaansluitingen en een binnendoor verbinding naar de garage. De begane grond is keurig afgewerkt, perfect onderhouden en in-stap-klaar te noemen.
Eerste verdieping: via overloop heeft u toegang tot drie slaapkamers, waarvan één voorzien is van een dakraam en een andere van een dakkapel. De functionele badkamer is voorzien van wastafel, douchecabine, tweede toilet en radiator.
Tweede verdieping: via een vaste trap bereikt u de ruime zolderberging, die voorzien is van een vaste kastenwand en opstelplaats van de cv-ketel. Deze ruimte leent zich uitstekend voor realisatie van een extra slaapkamer/kantoor.
Tuin en bijgebouwen: De inrit aan de voorzijde leent zich uitstekend voor het parkeren van meerdere auto's. De achtertuin is netjes aangelegd en op het noordwesten gelegen. Gezien de ligging geniet u hier optimale privacy. De woning beschikt over een aangebouwde carport en een sfeervolle veranda voorzien van spotjes, ideaal om het hele jaar door van uw buitenruimte te genieten. Op het terrein bevindt zich tevens een vrijstaande stenen garage (33m²) voorzien van een betonnen vloer en zolder, terwijl de tuin grotendeels onderhoudsarm is aangelegd met sierbestrating.
Ligging: De Metten is een rustige, groene woonwijk gelegen in het zuidoostelijke deel van Klazienaveen. Het dorp Klazienaveen is een prachtig levendig dorp met diverse voorzieningen, zoals scholen, winkels, sportclubs, een prachtige bioscoop en overdekt zwembad. Er worden regelmatig evenementen georganiseerd. Klazienaveen is goed bereikbaar en op korte afstand van Emmen en andere plaatsen in de regio. Openbaar vervoer is beschikbaar via busverbindingen. Het dorp heeft een goede verbinding met de A37 en daarmee ook met Duitsland, wat het dorp een strategische locatie geeft voor zowel lokaal als internationaal verkeer.
Extra info:
- bouwjaar 1992; volledig geïsoleerd en keurig onderhouden;
- riante hoekkavel van ca. 420 m2 eigen grond;
- energielabel B, met einddatum 23-11-2030;
- verwarming via radiatoren en cv-ketel Remeha Avanta uit 2011;
- in 2008 is de dakbedekking aangebouwde garage vernieuwd;
- in 2025 is de dakbedekking + isolatie van de dakkapel vernieuwd;
- in 2025 is het buitenschilderwerk vernieuwd;
- de woning is voorzien van strakke wanden met sierpleisterwerk, nette vloeren en plafonds;
- het centrum, scholen, sport en natuurgebied Bargerveen op korte afstand gelegen;
- Emmen op 15 autominuten gelegen; goede uitvalswegen richting Duitsland/ Groningen/ Zwolle/ Emmen.
Kenmerken
Refresh to make it work.
Plan een bezichtiging
voor: De Metten 16
Bel ons op 0591-648766 voor direct contact.
Of laat uw gegevens achter en wij nemen zo snel mogelijk contact met u op.
























































