Engweg 51 7891 RJ KLAZIENAVEEN
€ 275.000 Kosten koper
Omschrijving
Starters opgelet, goed onderhouden 2^1 kapwoning met aanbouw nabij het centrum!
In een leuke woonwijk staat deze verzorgde 2^1 kapwoning. Het geheel is gelegen op een ruime kavel van 393m² eigen grond en de woning verkeert in een goede staat van onderhoud. De indeling is compleet te noemen: een dichte aanbouwkeuken, een badkamer op de begane grond, 3 ruime slaapkamers boven en een sfeervolle tuinkamer waar je het hele jaar door kunt genieten. In 2003 is de woning aan de achterzijde uitgebouwd met een aanbouw, waarin de praktische keuken is gerealiseerd. De royale achtertuin is een ware zonvanger, gelegen op het zuiden. Hier kun je tot laat in de middag heerlijk buiten zitten, met voldoende privacy dankzij de ruim opgezette tuin. Ook praktisch: aan de zijkant van de woning bevindt zich een oprit, zodat je altijd op eigen terrein kunt parkeren. De woning staat in een gezellige jaren '50-wijk in Klazienaveen en alle voorzieningen en uitvalswegen liggen op loop- of fietsafstand. Kortom: een complete woning, klaar om direct te betrekken en te bewonen.
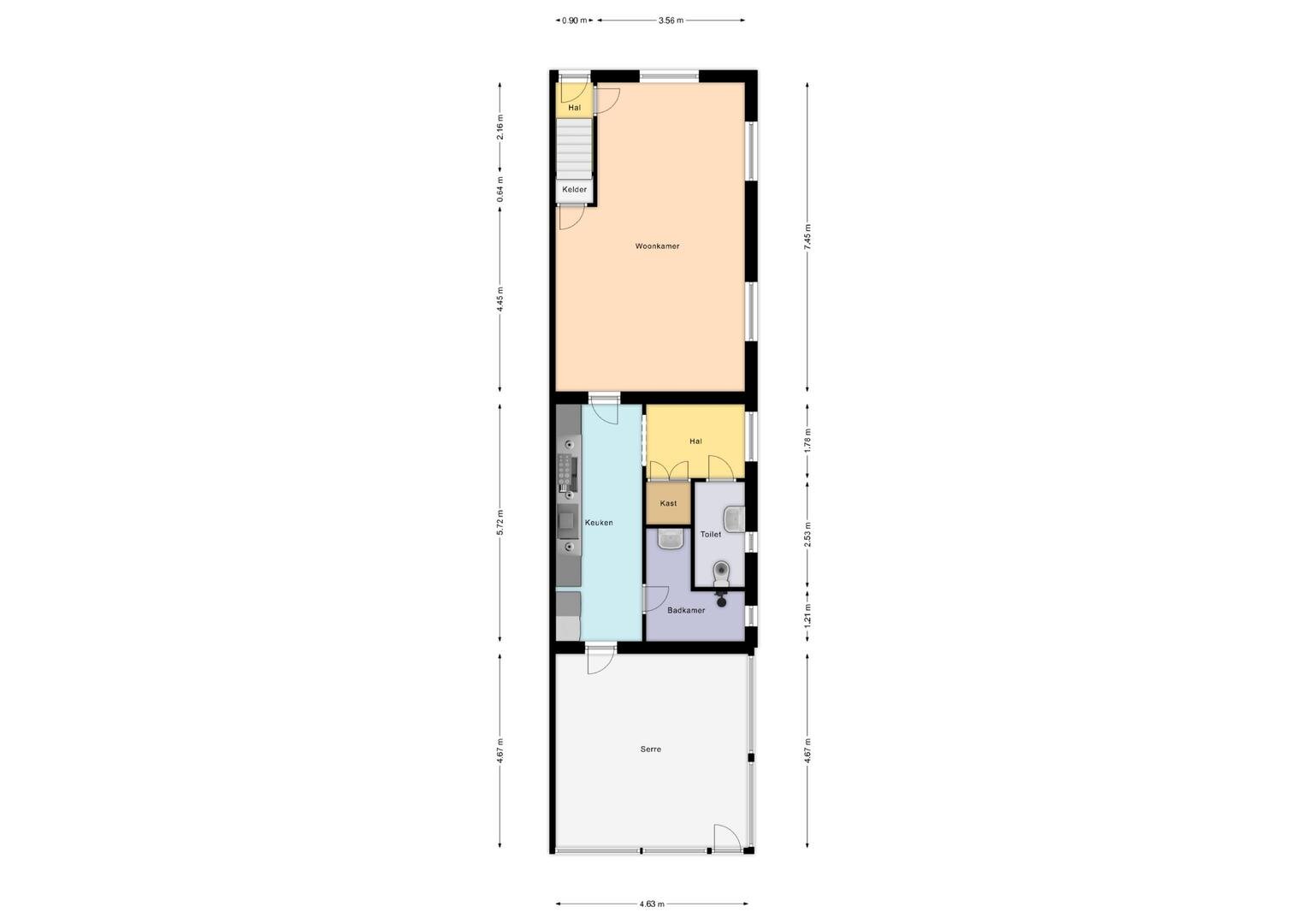
Indeling
Onderverdieping: Provisiekelder.
Begane grond: bij binnenkomst in de hal komt u direct in het centrale punt van de woning. Vanuit de hal is de meterkast bereikbaar en heeft u toegang tot de woonkamer. De woonkamer is straatgericht met prima lichtinval en is zeer ruim te noemen, via een open doorgang is de aanbouw te bereiken. In deze aanbouw bevindt zich de dichte keuken, die is ingericht met een functionele inbouwkeuken en apparatuur; koelkast, vaatwasser, gaskookplaat, afzuigkap en combimagnetron. Ook zijn hier de witgoedaansluitingen gerealiseerd. Vanuit de tussenhal bereikt u daarnaast een aparte cv-berging met vaste kast en een separaat toilet. De badkamer is voorzien van een wastafel met bijpassend meubel en een ruime douchehoek.
Eerste verdieping: via de trap bereikt u de overloop, die toegang biedt tot 3 slaapkamers. Alle slaapkamers zijn voorzien van vaste kasten, waarvan er één is voorzien van een dakkapel voor extra licht en ruimte.
Tweede verdieping: via vlizotrap naar zolderberging met dakraam.
Tuin en bijgebouwen: vanaf de lange oprit bereikt u de ruim opgezette achtertuin, die op het zuiden is gelegen en is voorzien van sierbestrating met een fraai gazon. Direct aan het huis bevindt zich een overdekte tuinkamer van kunststof van ca. 25m², terwijl verder in de tuin zowel een stenen berging met elektra als een houten schuur staan.
Ligging: De Engweg staat bekend als een heerlijke, levendige en kindvriendelijke wijk. Rondom de woning zijn volop speelvoorzieningen voor kinderen. Het dorp Klazienaveen is een levendig dorp met diverse voorzieningen, zoals scholen, winkels, sportclubs, bioscoop, overdekt zwembad en culturele activiteiten en er worden regelmatig evenementen georganiseerd. Klazienaveen is goed bereikbaar via de weg, met de N376 die het dorp verbindt met Emmen en andere plaatsen in de regio. Openbaar vervoer is beschikbaar via busverbindingen en heeft een goede verbinding met de A37 en daarmee ook met Duitsland, wat het dorp een strategische locatie geeft voor zowel lokaal als internationaal verkeer.
Extra info:
- bouwjaar 1952; doorlopend gemoderniseerd en vergroot;
- energielabel D met einddatum 05-02-2036;
- verwarming via radiatoren en cv-ketel Remeha HR (eigendom) uit 2013;
- ruime kavel van circa 393m² eigen grond; achtertuin op het Zuiden;
- de woning is v.v. van dakisolatie en kunststof kozijnen met HR+++ / HR en dubbele beglazing;
- in 2003 de aanbouw gerealiseerd;
- Winkels en diverse (sport)voorzieningen zijn op korte afstand te bereiken.
Voor meer informatie of het inplannen van een bezichtiging kunt u contact opnemen met ons kantoor!
In een leuke woonwijk staat deze verzorgde 2^1 kapwoning. Het geheel is gelegen op een ruime kavel van 393m² eigen grond en de woning verkeert in een goede staat van onderhoud. De indeling is compleet te noemen: een dichte aanbouwkeuken, een badkamer op de begane grond, 3 ruime slaapkamers boven en een sfeervolle tuinkamer waar je het hele jaar door kunt genieten. In 2003 is de woning aan de achterzijde uitgebouwd met een aanbouw, waarin de praktische keuken is gerealiseerd. De royale achtertuin is een ware zonvanger, gelegen op het zuiden. Hier kun je tot laat in de middag heerlijk buiten zitten, met voldoende privacy dankzij de ruim opgezette tuin. Ook praktisch: aan de zijkant van de woning bevindt zich een oprit, zodat je altijd op eigen terrein kunt parkeren. De woning staat in een gezellige jaren '50-wijk in Klazienaveen en alle voorzieningen en uitvalswegen liggen op loop- of fietsafstand. Kortom: een complete woning, klaar om direct te betrekken en te bewonen.
Indeling
Onderverdieping: Provisiekelder.
Begane grond: bij binnenkomst in de hal komt u direct in het centrale punt van de woning. Vanuit de hal is de meterkast bereikbaar en heeft u toegang tot de woonkamer. De woonkamer is straatgericht met prima lichtinval en is zeer ruim te noemen, via een open doorgang is de aanbouw te bereiken. In deze aanbouw bevindt zich de dichte keuken, die is ingericht met een functionele inbouwkeuken en apparatuur; koelkast, vaatwasser, gaskookplaat, afzuigkap en combimagnetron. Ook zijn hier de witgoedaansluitingen gerealiseerd. Vanuit de tussenhal bereikt u daarnaast een aparte cv-berging met vaste kast en een separaat toilet. De badkamer is voorzien van een wastafel met bijpassend meubel en een ruime douchehoek.
Eerste verdieping: via de trap bereikt u de overloop, die toegang biedt tot 3 slaapkamers. Alle slaapkamers zijn voorzien van vaste kasten, waarvan er één is voorzien van een dakkapel voor extra licht en ruimte.
Tweede verdieping: via vlizotrap naar zolderberging met dakraam.
Tuin en bijgebouwen: vanaf de lange oprit bereikt u de ruim opgezette achtertuin, die op het zuiden is gelegen en is voorzien van sierbestrating met een fraai gazon. Direct aan het huis bevindt zich een overdekte tuinkamer van kunststof van ca. 25m², terwijl verder in de tuin zowel een stenen berging met elektra als een houten schuur staan.
Ligging: De Engweg staat bekend als een heerlijke, levendige en kindvriendelijke wijk. Rondom de woning zijn volop speelvoorzieningen voor kinderen. Het dorp Klazienaveen is een levendig dorp met diverse voorzieningen, zoals scholen, winkels, sportclubs, bioscoop, overdekt zwembad en culturele activiteiten en er worden regelmatig evenementen georganiseerd. Klazienaveen is goed bereikbaar via de weg, met de N376 die het dorp verbindt met Emmen en andere plaatsen in de regio. Openbaar vervoer is beschikbaar via busverbindingen en heeft een goede verbinding met de A37 en daarmee ook met Duitsland, wat het dorp een strategische locatie geeft voor zowel lokaal als internationaal verkeer.
Extra info:
- bouwjaar 1952; doorlopend gemoderniseerd en vergroot;
- energielabel D met einddatum 05-02-2036;
- verwarming via radiatoren en cv-ketel Remeha HR (eigendom) uit 2013;
- ruime kavel van circa 393m² eigen grond; achtertuin op het Zuiden;
- de woning is v.v. van dakisolatie en kunststof kozijnen met HR+++ / HR en dubbele beglazing;
- in 2003 de aanbouw gerealiseerd;
- Winkels en diverse (sport)voorzieningen zijn op korte afstand te bereiken.
Voor meer informatie of het inplannen van een bezichtiging kunt u contact opnemen met ons kantoor!
Kenmerken
Refresh to make it work.
Plan een bezichtiging
voor: Engweg 51
Bel ons op 0591-648766 voor direct contact.
Of laat uw gegevens achter en wij nemen zo snel mogelijk contact met u op.
















































