Jagerslaan 97 7833 EP NIEUW-AMSTERDAM
€ 225.000 Kosten koper
Omschrijving
Donderdagochtend 16 april a.s. en dinsdagmiddag 21 april a.s. plannen we de bezichtigingen in.
Starters en gezinnen opgelet!
Zoek je een ruime gezinswoning in een veilige, groene omgeving, maar wil je niet inleveren op het dorpscomfort? Dan is deze tussenwoning aan een autoluw hofje precies wat je nodig hebt. Gelegen in een kindvriendelijke buurt en op loopafstand van het dorpscentrum met school, winkels en speeltuin om de hoek, biedt dit huis het beste van beide werelden: rust én gemak. De woning zelf is verrassend ruim met vier slaapkamers, ideaal voor een groeiend gezin of om een thuiswerkplek te creëren. Om een goede indruk te krijgen naar de mogelijkheden v.w.b. modernisering, zijn er drie artist impression foto's toegevoegd van de woonkamer, keuken en de badkamer. Daarnaast beschik je over een stenen berging en het geheel is gelegen op een ruim perceel van 161m², voldoende voor een heerlijke tuin waar kinderen veilig kunnen spelen en jij kunt ontspannen. Het hofje is autoluw én kindvriendelijk: fietsend en spelend op straat, zonder sluipverkeer. Kortom: een solide tussenwoning zonder poespas, maar met alles wat een starter of jong gezin nodig heeft. Niet twijfelen, maar kijken!
Indeling
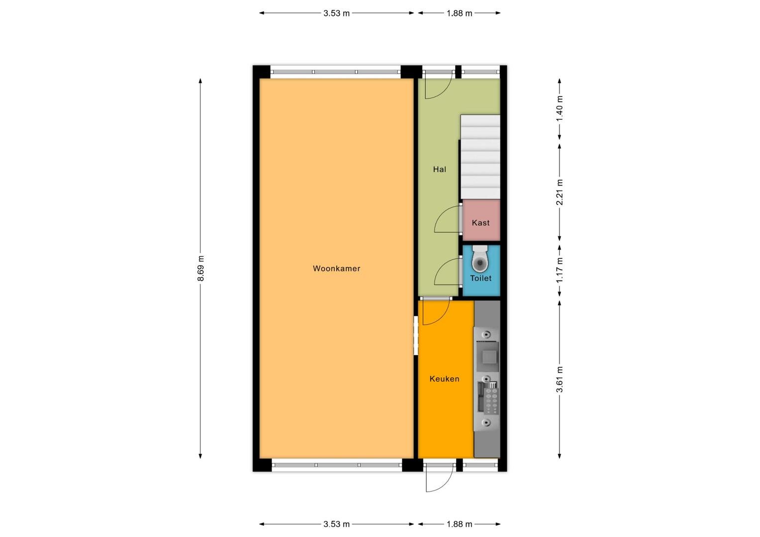
Begane grond: de entree/hal geeft toegang tot de meterkast en een trapkast, evenals de toiletruimte. Aan de voorzijde van de woning bevindt zich de doorzon woonkamer, die van voor tot achter doorloopt en daardoor veel licht en ruimte biedt. Naast de woonkamer is de dichte keuken gesitueerd. Deze keuken is voorzien van een volledige inbouwkeuken met apparatuur: koelkast, 4-pits gaskookplaat, afzuigkap en combi-oven. De gehele begane grond is afgewerkt met een laminaatvloer.
Eerste verdieping: de overloop biedt toegang tot alle ruimtes op de eerste verdieping. Er zijn drie ruime slaapkamers gesitueerd, ideaal voor bijvoorbeeld een Master Bedroom, kinderkamer of thuiskantoor. De functionele badkamer is voorzien van een wastafel en een comfortabele douchecabine. De verdieping is eveneens voorzien van nette laminaatvloeren. De eerste verdieping biedt goede leefruimte vanwege het "hoogbouw" type woning en is netjes afgewerkt.
Tweede verdieping: via een vaste trap bereik je de overloop van de tweede verdieping. Vanaf de overloop heb je toegang tot de cv-ruimte, waarin de cv-opstelling is geplaatst. Daarnaast bevindt zich hier de 4e slaapkamer, voorzien van een lichtrijk dakraam en een praktische knieschotberging, ideaal voor extra opbergruimte.
Tuin en bijgebouwen: de voorzijde van de woning ligt aan een fraaie groenstrook en heeft een siertuin, die het huis een verzorgde en groene uitstraling geeft. De achtertuin is georiënteerd op het noorden en beschikt over een comfortabel terras, een onderhoudsvriendelijk gazon en sierlijke beplanting. Daarnaast staat er een stenen berging in de tuin, die praktische opbergruimte biedt. De achtertuin kan worden afgesloten met een deur voor meer privacy en veiligheid. Achter de woning bevindt zich bovendien een groene zone met een speeltuin, ideaal voor ontspanning en spel.
Extra info:
- bouwjaar 1968; doorlopend gemoderniseerd;
- de kavelgrootte is 161m² eigen grond;
- energielabel C met einddatum 15-04-2035;
- verwarming via radiatoren en cv-ketel Intergas HR combiketel 2013;
- hardhouten kozijnen met grotendeels dubbele beglazing;
- "As is Where is" clausule en "Niet zelfbewoningsclausule" van toepassing;
- projectnotaris De Werven Netwerk Notarissen Wolvega;
- de voorzieningen in het dorp Nieuw-Amsterdam, waaronder, scholen, winkels, huisartsenpraktijk, sportfaciliteiten bevinden zich op loopafstand van de woning. Veenoord beschikt over een treinstation en een aansluiting op de A37 richting de randstad en Duitsland.
Starters en gezinnen opgelet!
Zoek je een ruime gezinswoning in een veilige, groene omgeving, maar wil je niet inleveren op het dorpscomfort? Dan is deze tussenwoning aan een autoluw hofje precies wat je nodig hebt. Gelegen in een kindvriendelijke buurt en op loopafstand van het dorpscentrum met school, winkels en speeltuin om de hoek, biedt dit huis het beste van beide werelden: rust én gemak. De woning zelf is verrassend ruim met vier slaapkamers, ideaal voor een groeiend gezin of om een thuiswerkplek te creëren. Om een goede indruk te krijgen naar de mogelijkheden v.w.b. modernisering, zijn er drie artist impression foto's toegevoegd van de woonkamer, keuken en de badkamer. Daarnaast beschik je over een stenen berging en het geheel is gelegen op een ruim perceel van 161m², voldoende voor een heerlijke tuin waar kinderen veilig kunnen spelen en jij kunt ontspannen. Het hofje is autoluw én kindvriendelijk: fietsend en spelend op straat, zonder sluipverkeer. Kortom: een solide tussenwoning zonder poespas, maar met alles wat een starter of jong gezin nodig heeft. Niet twijfelen, maar kijken!
Indeling
Begane grond: de entree/hal geeft toegang tot de meterkast en een trapkast, evenals de toiletruimte. Aan de voorzijde van de woning bevindt zich de doorzon woonkamer, die van voor tot achter doorloopt en daardoor veel licht en ruimte biedt. Naast de woonkamer is de dichte keuken gesitueerd. Deze keuken is voorzien van een volledige inbouwkeuken met apparatuur: koelkast, 4-pits gaskookplaat, afzuigkap en combi-oven. De gehele begane grond is afgewerkt met een laminaatvloer.
Eerste verdieping: de overloop biedt toegang tot alle ruimtes op de eerste verdieping. Er zijn drie ruime slaapkamers gesitueerd, ideaal voor bijvoorbeeld een Master Bedroom, kinderkamer of thuiskantoor. De functionele badkamer is voorzien van een wastafel en een comfortabele douchecabine. De verdieping is eveneens voorzien van nette laminaatvloeren. De eerste verdieping biedt goede leefruimte vanwege het "hoogbouw" type woning en is netjes afgewerkt.
Tweede verdieping: via een vaste trap bereik je de overloop van de tweede verdieping. Vanaf de overloop heb je toegang tot de cv-ruimte, waarin de cv-opstelling is geplaatst. Daarnaast bevindt zich hier de 4e slaapkamer, voorzien van een lichtrijk dakraam en een praktische knieschotberging, ideaal voor extra opbergruimte.
Tuin en bijgebouwen: de voorzijde van de woning ligt aan een fraaie groenstrook en heeft een siertuin, die het huis een verzorgde en groene uitstraling geeft. De achtertuin is georiënteerd op het noorden en beschikt over een comfortabel terras, een onderhoudsvriendelijk gazon en sierlijke beplanting. Daarnaast staat er een stenen berging in de tuin, die praktische opbergruimte biedt. De achtertuin kan worden afgesloten met een deur voor meer privacy en veiligheid. Achter de woning bevindt zich bovendien een groene zone met een speeltuin, ideaal voor ontspanning en spel.
Extra info:
- bouwjaar 1968; doorlopend gemoderniseerd;
- de kavelgrootte is 161m² eigen grond;
- energielabel C met einddatum 15-04-2035;
- verwarming via radiatoren en cv-ketel Intergas HR combiketel 2013;
- hardhouten kozijnen met grotendeels dubbele beglazing;
- "As is Where is" clausule en "Niet zelfbewoningsclausule" van toepassing;
- projectnotaris De Werven Netwerk Notarissen Wolvega;
- de voorzieningen in het dorp Nieuw-Amsterdam, waaronder, scholen, winkels, huisartsenpraktijk, sportfaciliteiten bevinden zich op loopafstand van de woning. Veenoord beschikt over een treinstation en een aansluiting op de A37 richting de randstad en Duitsland.
Kenmerken
Refresh to make it work.
Plan een bezichtiging
voor: Jagerslaan 97
Bel ons op 0591-648766 voor direct contact.
Of laat uw gegevens achter en wij nemen zo snel mogelijk contact met u op.





















































