Langestraat 274 7891 GS KLAZIENAVEEN
€ 550.000 Kosten koper
Omschrijving
Prachtig ruim vrijstaand woonhuis met kapschuur en eenvoudige bijgebouwen op een groot, zonnig perceel van 1.225m² met vrij uitzicht op landerijen!
Geniet van ruimte, licht en weids uitzicht in dit karakteristieke, volledig gerenoveerde woonhuis. Gelegen aan de rand van het dorp biedt deze woning een unieke combinatie van rust, mogelijkheden en moderne woonkwaliteit. Binnen is er veel leefruimte gecreëerd (201m² woonoppervlak). Op de begane grond is een royale woonkamer en een lichte gezellige woonkeuken die uitkijkt over de achtertuin. Een extra vertrek op de begane grond is perfect als thuiswerkplek of slaapkamer en opvallend is de bijkeuken op de begane grond, die reeds is voorzien van alle aansluitingen voor een douche. Hierdoor is levensloopbestendig wonen goed realiseerbaar. Op de eerste verdieping zijn 3 ruime slaapkamers, waarvan de ouderslaapkamer is voorzien van walk-in-closet. Door de flexibele indeling is hier eventueel een vierde slaapkamer te creëren. De woning is tevens voorzien van complete badkamer, aparte wasruimte en separate toilet. De recente, volledige renovatie (2018) heeft gezorgd voor een eigentijds en comfortabel woonklimaat, terwijl het karakter van het huis bewaard is gebleven. De buitenruimte vormt een privédomein op het zuiden. De diepe tuin, de eenvoudige stenen bijgebouwen en de forse, overdekte kapschuur bieden alle denkbare ruimte voor ontspanning, opslag en hobby. Een woning die niet alleen onderdak biedt, maar een compleet en afgerond thuis vormt. Een plek om tot rust te komen en naar eigen inzicht in te richten, voor nu en voor de toekomst.
Indeling
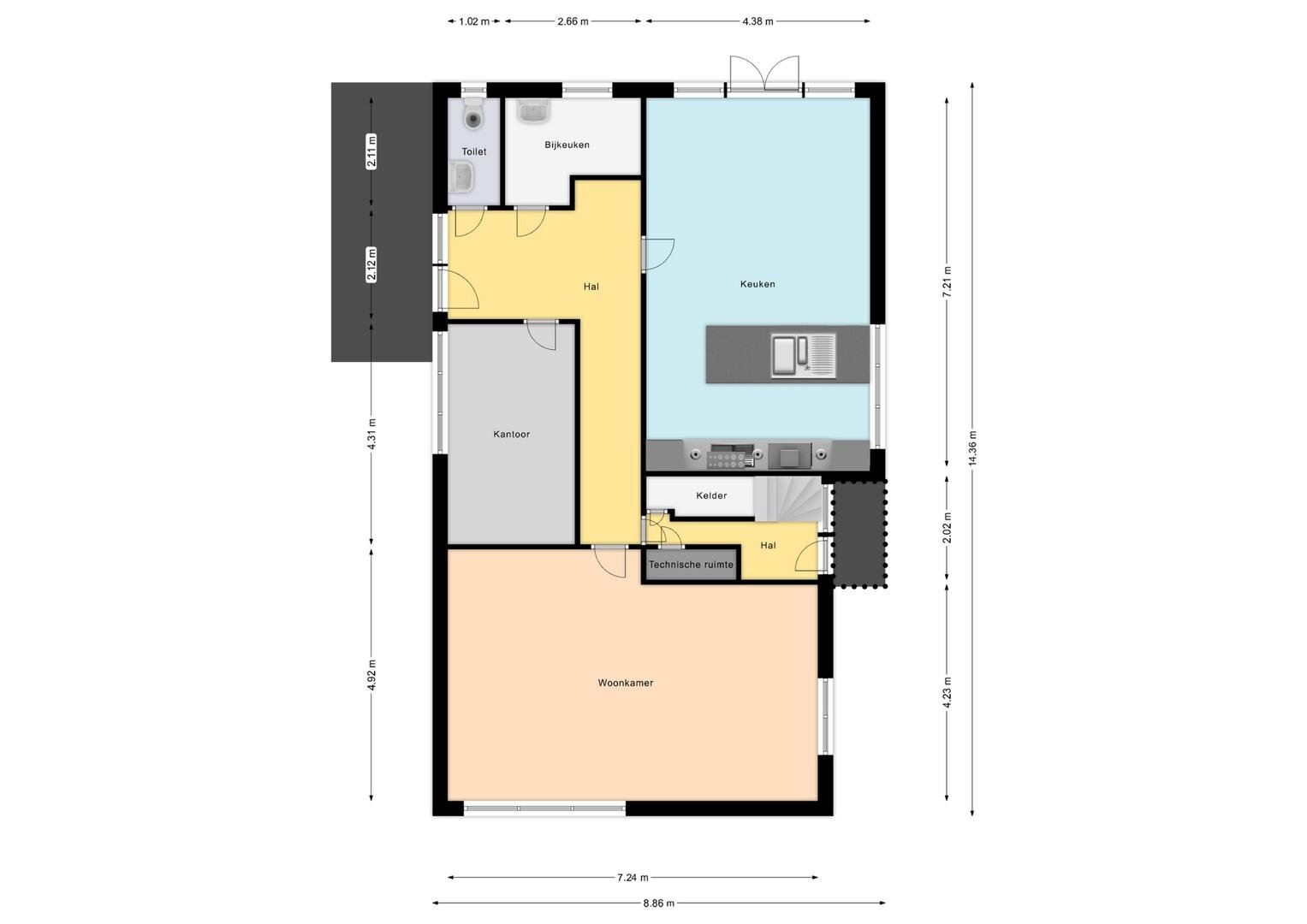
Begane grond: via de entree aan de zijkant betreedt u de woning, waar een hal met vaste kast en meterkast toegang geeft tot de kelder en de ruime straatgerichte woonkamer. Via de tussenhal met garderobe komt u bij een multifunctionele kantoor-/slaapkamer, toiletruimte en de bijkeuken; deze laatste ruimte heeft reeds alle aansluitingen om een doucheruimte te creëren, waarmee slapen en baden op de begane grond mogelijk wordt. De tuingerichte woonkeuken met openslaande tuindeuren is voorzien van een moderne en complete inbouwkeuken met koelkast, vaatwasser, inductiekookplaat, afzuigkap en combi-oven. De begane grond is netjes afgewerkt, o.a. strak afgewerkte wanden en plafonds, en zowel voorzien van PVC vloeren en plavuizen.
Eerste verdieping: via de overloop bereikt u twee slaapkamers en een aparte toiletruimte, gevolgd door een extra ruime slaapkamer met een eigen walk-in closet, een praktische waskamer met witgoedaansluitingen en een moderne badkamer uitgerust met een ligbad/whirlpool, een dubbel wastafelmeubel, een douchehoek, vloerverwarming en een designradiator.
Tweede verdieping: via een vlizotrap heeft u toegang tot de zolder, waar eveneens de cv-ketel is gesitueerd. Deze verdieping is een functionele aanvulling op het geheel en biedt verrassend veel bergruimte.
Tuin en bijgebouwen: de voortuin biedt een weids uitzicht op de landerijen, naast de woning ligt een ruime inrit met plaats voor meerdere auto's en twee grote garages waarvan één voorzien is van elektra en water, terwijl achterin de grote, zonnige tuin op het zuiden een gazon, meerdere terrassen en een grote kapschuur van Douglas hout met elektra en water zijn gesitueerd.
Ligging: het dorp Klazienaveen is een levendig dorp met diverse voorzieningen, zoals scholen, winkels, sportclubs, bioscoop, overdekt zwembad en culturele activiteiten en er worden regelmatig evenementen georganiseerd. Klazienaveen is goed bereikbaar via de weg, met de N376 die het dorp verbindt met Emmen en andere plaatsen in de regio. Openbaar vervoer is beschikbaar via busverbindingen en heeft een goede verbinding met de A37.
Natuurgebied Bargerveen ligt letterlijk om de hoek, een uniek hoogveengebied met prachtige fiets- en wandelroutes. Hier woon je in alle rust, met de natuur binnen handbereik. Het Bargerveen is een natuurgebied van Staatsbosbeheer. Het gebied beslaat 2.100 hectare en bestaat voornamelijk uit hoogveen. Het vormt het laatste substantiële overblijfsel van het voormalige Bourtangermoeras, waarvan de oorspronkelijke oppervlakte wordt geschat tussen de 1.600 en 3.000 km².
Extra info:
- bouwjaar 1915, in 1976 en 2018 geheel gerenoveerd, verduurzaamd en gemoderniseerd;
- kavelgrootte bedraagt circa 1.225 m² eigen grond;
- de woning is aan de doorgaande weg en viswater gelegen;
- energielabel C met einddatum 10-12-2030;
- verwarming via radiatoren, airconditioning en cv-ketel Intergas HRE uit 2020;
- split airconditioning in slaapkamer;
- grotendeels kunststof kozijnen met HR +++ beglazing;
- de woning is voorzien van glas-, grotendeels vloer- , dak- en muurisolatie;
- grotendeels voorzien van rolluiken (op de verdieping);
- winkels, scholen, sportvoorzieningen en natuurschoon op loopafstand;
- Bargerveen is prachtig natuurgebied van ca. 2500 hectare en heeft vele fiets- en wandelpaden;
- voor info m.b.t. "Het Bargerveen": https://www.staatsbosbeheer.nl/Natuurgebieden/veenland.
Neem voor meer informatie of het plannen van een bezichtiging direct contact met ons op.
Geniet van ruimte, licht en weids uitzicht in dit karakteristieke, volledig gerenoveerde woonhuis. Gelegen aan de rand van het dorp biedt deze woning een unieke combinatie van rust, mogelijkheden en moderne woonkwaliteit. Binnen is er veel leefruimte gecreëerd (201m² woonoppervlak). Op de begane grond is een royale woonkamer en een lichte gezellige woonkeuken die uitkijkt over de achtertuin. Een extra vertrek op de begane grond is perfect als thuiswerkplek of slaapkamer en opvallend is de bijkeuken op de begane grond, die reeds is voorzien van alle aansluitingen voor een douche. Hierdoor is levensloopbestendig wonen goed realiseerbaar. Op de eerste verdieping zijn 3 ruime slaapkamers, waarvan de ouderslaapkamer is voorzien van walk-in-closet. Door de flexibele indeling is hier eventueel een vierde slaapkamer te creëren. De woning is tevens voorzien van complete badkamer, aparte wasruimte en separate toilet. De recente, volledige renovatie (2018) heeft gezorgd voor een eigentijds en comfortabel woonklimaat, terwijl het karakter van het huis bewaard is gebleven. De buitenruimte vormt een privédomein op het zuiden. De diepe tuin, de eenvoudige stenen bijgebouwen en de forse, overdekte kapschuur bieden alle denkbare ruimte voor ontspanning, opslag en hobby. Een woning die niet alleen onderdak biedt, maar een compleet en afgerond thuis vormt. Een plek om tot rust te komen en naar eigen inzicht in te richten, voor nu en voor de toekomst.
Indeling
Begane grond: via de entree aan de zijkant betreedt u de woning, waar een hal met vaste kast en meterkast toegang geeft tot de kelder en de ruime straatgerichte woonkamer. Via de tussenhal met garderobe komt u bij een multifunctionele kantoor-/slaapkamer, toiletruimte en de bijkeuken; deze laatste ruimte heeft reeds alle aansluitingen om een doucheruimte te creëren, waarmee slapen en baden op de begane grond mogelijk wordt. De tuingerichte woonkeuken met openslaande tuindeuren is voorzien van een moderne en complete inbouwkeuken met koelkast, vaatwasser, inductiekookplaat, afzuigkap en combi-oven. De begane grond is netjes afgewerkt, o.a. strak afgewerkte wanden en plafonds, en zowel voorzien van PVC vloeren en plavuizen.
Eerste verdieping: via de overloop bereikt u twee slaapkamers en een aparte toiletruimte, gevolgd door een extra ruime slaapkamer met een eigen walk-in closet, een praktische waskamer met witgoedaansluitingen en een moderne badkamer uitgerust met een ligbad/whirlpool, een dubbel wastafelmeubel, een douchehoek, vloerverwarming en een designradiator.
Tweede verdieping: via een vlizotrap heeft u toegang tot de zolder, waar eveneens de cv-ketel is gesitueerd. Deze verdieping is een functionele aanvulling op het geheel en biedt verrassend veel bergruimte.
Tuin en bijgebouwen: de voortuin biedt een weids uitzicht op de landerijen, naast de woning ligt een ruime inrit met plaats voor meerdere auto's en twee grote garages waarvan één voorzien is van elektra en water, terwijl achterin de grote, zonnige tuin op het zuiden een gazon, meerdere terrassen en een grote kapschuur van Douglas hout met elektra en water zijn gesitueerd.
Ligging: het dorp Klazienaveen is een levendig dorp met diverse voorzieningen, zoals scholen, winkels, sportclubs, bioscoop, overdekt zwembad en culturele activiteiten en er worden regelmatig evenementen georganiseerd. Klazienaveen is goed bereikbaar via de weg, met de N376 die het dorp verbindt met Emmen en andere plaatsen in de regio. Openbaar vervoer is beschikbaar via busverbindingen en heeft een goede verbinding met de A37.
Natuurgebied Bargerveen ligt letterlijk om de hoek, een uniek hoogveengebied met prachtige fiets- en wandelroutes. Hier woon je in alle rust, met de natuur binnen handbereik. Het Bargerveen is een natuurgebied van Staatsbosbeheer. Het gebied beslaat 2.100 hectare en bestaat voornamelijk uit hoogveen. Het vormt het laatste substantiële overblijfsel van het voormalige Bourtangermoeras, waarvan de oorspronkelijke oppervlakte wordt geschat tussen de 1.600 en 3.000 km².
Extra info:
- bouwjaar 1915, in 1976 en 2018 geheel gerenoveerd, verduurzaamd en gemoderniseerd;
- kavelgrootte bedraagt circa 1.225 m² eigen grond;
- de woning is aan de doorgaande weg en viswater gelegen;
- energielabel C met einddatum 10-12-2030;
- verwarming via radiatoren, airconditioning en cv-ketel Intergas HRE uit 2020;
- split airconditioning in slaapkamer;
- grotendeels kunststof kozijnen met HR +++ beglazing;
- de woning is voorzien van glas-, grotendeels vloer- , dak- en muurisolatie;
- grotendeels voorzien van rolluiken (op de verdieping);
- winkels, scholen, sportvoorzieningen en natuurschoon op loopafstand;
- Bargerveen is prachtig natuurgebied van ca. 2500 hectare en heeft vele fiets- en wandelpaden;
- voor info m.b.t. "Het Bargerveen": https://www.staatsbosbeheer.nl/Natuurgebieden/veenland.
Neem voor meer informatie of het plannen van een bezichtiging direct contact met ons op.
Kenmerken
Refresh to make it work.
Plan een bezichtiging
voor: Langestraat 274
Bel ons op 0591-648766 voor direct contact.
Of laat uw gegevens achter en wij nemen zo snel mogelijk contact met u op.





































































