Molenwerf 12 7891 HS KLAZIENAVEEN
€ 259.500 Kosten koper
Omschrijving
Starters en kleine gezinnen opgelet! Deze parel wordt TANDENBORSTEL KLAAR opgeleverd, meubeltjes verhuizen en genieten maar!!
Aan de Molenwerf gelegen nabij de "Trambrug", wordt deze 2 onder 1 kap woning met aluminium overkapping en vrijstaande houten garage en schuur te koop aangeboden. De woning is vanaf 2024 volledig gerenoveerd, volledig gemoderniseerd en tevens verduurzaamd. Het geheel is voorzien van kunststof kozijnen, 6 zonnepanelen, airco, pelletkachel, badkamer op zowel de begane grond als verdieping, prachtige keuken met apparatuur enz enz. De kavelgrootte bedraagt 264m² eigen grond. De ligging is erg goed te noemen; veel privacy, parkeren op eigen terrein en nabij het moderne winkelcentrum gelegen.
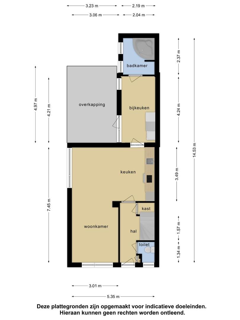
Indeling
begane grond: hal/entree, toilet, meterkast, provisiekeldertje, L-woonkamer met pelletkachel, open keuken met nieuwe inbouwkeuken en apparatuur, bijkeuken met wasmachineaansluiting en tenslotte naar de nieuwe badkamer.
Verdieping: overloop, 3 slaapkamers waarvan 2 met vaste kasten, separate toiletruimte (nieuw) en badkamer (nieuw).
Buiten: Onderhoudsarme tuin gelegen op het Noorden, vrijstaande houten garage met aangebouwde schuur, in totaal circa 8x5 meter. Er is tevens een ruime veranda aanwezig en de naastgelegen inrit biedt ruimte voor meerdere auto's.
Informatie
-De woning is (grotendeels) voorzien van kunststof kozijnen en gedeeltelijk dubbele beglazing;
-Aluminium overkapping van 4,5 x 2,5 meter;
-2024: keuken, badkamers, Cv-ketel, vloeren, toilet op verdieping;
-CV-ketel Intergas (2024) en pelletkachel (2024, ter overname);
-In 2024 v.v. bodemisolatie, 6 zonnepanelen en muurisolatie;
-De woning is grotendeels voorzien van rolluiken;
-De gevels zijn in 2013 gestraald, gereinigd en opnieuw gevoegd;
-In 2015 is de gehele straat vernieuwd; nieuwe riolering, nieuwe inrichting en speelmogelijkheden voor kinderen;
Wij laten u graag deze leuke woning zien!
Aan de Molenwerf gelegen nabij de "Trambrug", wordt deze 2 onder 1 kap woning met aluminium overkapping en vrijstaande houten garage en schuur te koop aangeboden. De woning is vanaf 2024 volledig gerenoveerd, volledig gemoderniseerd en tevens verduurzaamd. Het geheel is voorzien van kunststof kozijnen, 6 zonnepanelen, airco, pelletkachel, badkamer op zowel de begane grond als verdieping, prachtige keuken met apparatuur enz enz. De kavelgrootte bedraagt 264m² eigen grond. De ligging is erg goed te noemen; veel privacy, parkeren op eigen terrein en nabij het moderne winkelcentrum gelegen.
Indeling
begane grond: hal/entree, toilet, meterkast, provisiekeldertje, L-woonkamer met pelletkachel, open keuken met nieuwe inbouwkeuken en apparatuur, bijkeuken met wasmachineaansluiting en tenslotte naar de nieuwe badkamer.
Verdieping: overloop, 3 slaapkamers waarvan 2 met vaste kasten, separate toiletruimte (nieuw) en badkamer (nieuw).
Buiten: Onderhoudsarme tuin gelegen op het Noorden, vrijstaande houten garage met aangebouwde schuur, in totaal circa 8x5 meter. Er is tevens een ruime veranda aanwezig en de naastgelegen inrit biedt ruimte voor meerdere auto's.
Informatie
-De woning is (grotendeels) voorzien van kunststof kozijnen en gedeeltelijk dubbele beglazing;
-Aluminium overkapping van 4,5 x 2,5 meter;
-2024: keuken, badkamers, Cv-ketel, vloeren, toilet op verdieping;
-CV-ketel Intergas (2024) en pelletkachel (2024, ter overname);
-In 2024 v.v. bodemisolatie, 6 zonnepanelen en muurisolatie;
-De woning is grotendeels voorzien van rolluiken;
-De gevels zijn in 2013 gestraald, gereinigd en opnieuw gevoegd;
-In 2015 is de gehele straat vernieuwd; nieuwe riolering, nieuwe inrichting en speelmogelijkheden voor kinderen;
Wij laten u graag deze leuke woning zien!
Kenmerken
Refresh to make it work.
Helaas..
Dit object is niet meer beschikbaar
Voor meer informatie kunt u contact met ons opnemen.
Bel
ons op 0591-648766 voor direct contact.



























