Mosveen 8 7894 CX ZWARTEMEER
€ 209.000 Kosten koper
Omschrijving
Starters en gezinnen opgelet! Complete gezinswoning in een kindvriendelijke wijk nabij winkels en het natuurgebied "Bargerveen".
Deze knusse tussenwoning met aanbouw in een kindvriendelijke woonwijk is de perfecte woning voor starters en gezinnen. De woning is o.a. voorzien van een ruime doozonwoonkamer (ca 27m²), dichte aanbouwkeuken met apparatuur, 3 prima slaapkamers, een moderne badkamer (2016) én een extra ruime zolderberging voor alle opslag. Deze woning is netjes onderhouden en doorlopend gemoderniseerd. Met kunststof kozijnen en gedeeltelijk houten kozijnen, alle voorzien van dubbele beglazing en muurisolatie is het een comfortabele woning. Ook buiten heeft deze woning veel te bieden. Op het perceel staan zowel een stenen schuur als een houten schuur, ideaal voor extra opslag of een werkplaats. De locatie is perfect voor gezinnen. In de directe omgeving zijn alle voorzieningen aanwezig, zoals winkels, scholen én op loopafstand van natuurgebied "Bargerveen". Alles is binnen handbereik. Een uitgelezen kans om een betaalbare en complete woning te kopen in een gewilde buurt.
Indeling
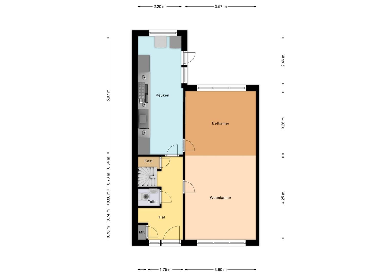
Begane grond: hal/entree, meterkast, garderobenis, toiletruimte v.v. hangtoilet en fonteintje, provisiekast, ruime doorzonwoonkamer van circa 27m². Aansluitend is de dichte keuken te bereiken. De keuken (ca. 2000) is voorzien van een koelkast, vaatwasser, keramische kookplaat en afzuigkap en in de aanbouw is tevens de wasmachineaansluiting gerealiseerd. De begane grond is netjes afgewerkt en biedt, mede door de grote raampartijen, veel lichtinval.
1e verdieping: vanaf de overloop heeft u toegang tot 3 prima slaapkamers. Op de overloop bevinden zich tevens een aparte inloopkast en de complete badkamer (2016), voorzien van wastafelmeubel, douchecabine en 2e toilet. De verdieping is vanwege de rechte wanden praktisch in gebruik en het geheel is netjes afgewerkt.
2e verdieping: via vlizotrap naar zolderberging met CV-ketel en nieuw dakraampje. Het is heel goed mogelijk om een vaste trap te realiseren, eventueel in combinatie met een dakkapel. Hierdoor ontstaat een extra volwaardige en bruikbare verdieping.
Tuin en bijgebouwen: De voortuin ligt aan het voetpad en een openbare parkeerplaats, terwijl de achterzijde op het Noorden ligt en voorzien is van sierbestrating, een bloemenborder, een houten schuur en een stenen schuur, ideaal voor extra opslag.
Ligging: het dorp Zwartemeer is een klein gemoedelijk dorp in Drenthe, biedt niet alleen rust en ruimte, maar ook uitstekende verbindingen via de A37 (Duitsland - Zwolle). De woning ligt op korte afstand van alle voorzieningen van Zwartemeer. Natuurgebied Bargerveen ligt letterlijk om de hoek, een uniek hoogveengebied met prachtige fiets- en wandelroutes. Hier woon je in alle rust, met de natuur binnen handbereik. Het Bargerveen is een natuurgebied van Staatsbosbeheer. Het gebied beslaat 2.100 hectare en bestaat voornamelijk uit hoogveen. Het vormt het laatste substantiële overblijfsel van het voormalige Bourtangermoeras, waarvan de oorspronkelijke oppervlakte wordt geschat tussen de 1.600 en 3.000 km².
Extra info:
- bouwjaar 1972 en in 1981 aanbouw gerealiseerd;
- kavelgrootte 155 m2 eigen grond;
- energielabel C met einddatum 27-11-2035;
- verwarming via radiatoren en CV-ketel Remeha Avanta uit 2017;
- muurisolatie, gedeeltelijk kunststof kozijnen en HR++ en gedeeltelijk hardhouten met dubbele beglazing;
- de woning is gedeeltelijk v.v. rolluiken;
- winkels, scholen, sportvoorzieningen en natuurschoon op loopafstand;
- Bargerveen is prachtig natuurgebied van ca. 2500 hectare en heeft vele fiets- en wandelpaden;
- voor info m.b.t. "Het Bargerveen": https://www.staatsbosbeheer.nl/Natuurgebieden/veenland.
Neem gerust contact op voor meer informatie of om een bezichtiging in te plannen.
Deze knusse tussenwoning met aanbouw in een kindvriendelijke woonwijk is de perfecte woning voor starters en gezinnen. De woning is o.a. voorzien van een ruime doozonwoonkamer (ca 27m²), dichte aanbouwkeuken met apparatuur, 3 prima slaapkamers, een moderne badkamer (2016) én een extra ruime zolderberging voor alle opslag. Deze woning is netjes onderhouden en doorlopend gemoderniseerd. Met kunststof kozijnen en gedeeltelijk houten kozijnen, alle voorzien van dubbele beglazing en muurisolatie is het een comfortabele woning. Ook buiten heeft deze woning veel te bieden. Op het perceel staan zowel een stenen schuur als een houten schuur, ideaal voor extra opslag of een werkplaats. De locatie is perfect voor gezinnen. In de directe omgeving zijn alle voorzieningen aanwezig, zoals winkels, scholen én op loopafstand van natuurgebied "Bargerveen". Alles is binnen handbereik. Een uitgelezen kans om een betaalbare en complete woning te kopen in een gewilde buurt.
Indeling
Begane grond: hal/entree, meterkast, garderobenis, toiletruimte v.v. hangtoilet en fonteintje, provisiekast, ruime doorzonwoonkamer van circa 27m². Aansluitend is de dichte keuken te bereiken. De keuken (ca. 2000) is voorzien van een koelkast, vaatwasser, keramische kookplaat en afzuigkap en in de aanbouw is tevens de wasmachineaansluiting gerealiseerd. De begane grond is netjes afgewerkt en biedt, mede door de grote raampartijen, veel lichtinval.
1e verdieping: vanaf de overloop heeft u toegang tot 3 prima slaapkamers. Op de overloop bevinden zich tevens een aparte inloopkast en de complete badkamer (2016), voorzien van wastafelmeubel, douchecabine en 2e toilet. De verdieping is vanwege de rechte wanden praktisch in gebruik en het geheel is netjes afgewerkt.
2e verdieping: via vlizotrap naar zolderberging met CV-ketel en nieuw dakraampje. Het is heel goed mogelijk om een vaste trap te realiseren, eventueel in combinatie met een dakkapel. Hierdoor ontstaat een extra volwaardige en bruikbare verdieping.
Tuin en bijgebouwen: De voortuin ligt aan het voetpad en een openbare parkeerplaats, terwijl de achterzijde op het Noorden ligt en voorzien is van sierbestrating, een bloemenborder, een houten schuur en een stenen schuur, ideaal voor extra opslag.
Ligging: het dorp Zwartemeer is een klein gemoedelijk dorp in Drenthe, biedt niet alleen rust en ruimte, maar ook uitstekende verbindingen via de A37 (Duitsland - Zwolle). De woning ligt op korte afstand van alle voorzieningen van Zwartemeer. Natuurgebied Bargerveen ligt letterlijk om de hoek, een uniek hoogveengebied met prachtige fiets- en wandelroutes. Hier woon je in alle rust, met de natuur binnen handbereik. Het Bargerveen is een natuurgebied van Staatsbosbeheer. Het gebied beslaat 2.100 hectare en bestaat voornamelijk uit hoogveen. Het vormt het laatste substantiële overblijfsel van het voormalige Bourtangermoeras, waarvan de oorspronkelijke oppervlakte wordt geschat tussen de 1.600 en 3.000 km².
Extra info:
- bouwjaar 1972 en in 1981 aanbouw gerealiseerd;
- kavelgrootte 155 m2 eigen grond;
- energielabel C met einddatum 27-11-2035;
- verwarming via radiatoren en CV-ketel Remeha Avanta uit 2017;
- muurisolatie, gedeeltelijk kunststof kozijnen en HR++ en gedeeltelijk hardhouten met dubbele beglazing;
- de woning is gedeeltelijk v.v. rolluiken;
- winkels, scholen, sportvoorzieningen en natuurschoon op loopafstand;
- Bargerveen is prachtig natuurgebied van ca. 2500 hectare en heeft vele fiets- en wandelpaden;
- voor info m.b.t. "Het Bargerveen": https://www.staatsbosbeheer.nl/Natuurgebieden/veenland.
Neem gerust contact op voor meer informatie of om een bezichtiging in te plannen.
Kenmerken
Refresh to make it work.
Helaas..
Dit object is niet meer beschikbaar
Voor meer informatie kunt u contact met ons opnemen.
Bel
ons op 0591-648766 voor direct contact.













































